
Pipe Flow Expert Software——全球100多个国家工程师的信赖之选
Pipe Flow Expert Software是我们首屈一指的管道设计与管网建模软件。它能计算包含多个进出水箱、串联或并联多台水泵、多种管径及管件的开环或闭环管道网络中的流体流动。该软件可精确计算每根管道的流量,并测算整个系统中的管压损失。
流量与管道压降计算
您需要计算管道流量吗?
您需要计算管道压降吗?
您需要建模包含储罐、泵、管道及管件的流体流动吗?
购买Pipe Flow Expert Software许可证,两分钟内即可投入使用。
为何选择Pipe Flow Expert Software进行流量与压降计算?
作为管道系统流量与压降建模软件,其卓越性能难以匹敌。它能模拟开环与闭环管道系统,支持多储罐与排放点配置,兼容并联或串联多泵系统,并内置管道数据库、管件数据库及流体数据库。最重要的是,其操作简便,让管道设计、流量计算与压降分析变得轻松无忧。
简而言之:它操作便捷、计算可靠、支持无忧、性价比卓越
贵司产品堪称卓越……可以说,PipeFlow软件、技术支持及产品品质都令我赞不绝口。
[ 里克·富勒,加州里士满市水力模型工程师 ]
Pipe Flow Expert已被全球100多个国家的管道设计工程师广泛采用。
Pipe Flow Expert功能亮点:
管道网络分析与管道系统建模的易用型软件
Pipe Flow Expert 操作简便

正如客户评价所言,Pipe Flow Expert 拥有业内最直观、最顶尖的用户界面,在所有管道设计与分析程序中独树一帜。
您将找不到其他功能相当的软件能让您如此快速上手。
我们始终将易用性置于首位,从开发之初就以终端用户为中心进行设计,在保持强大核心功能的同时确保操作简便。
强大的计算引擎
其配备的强大可靠计算引擎可提供精准的流量与压力损失计算,因此赢得全球100多个国家用户的信赖。
通过Pipe Flow Expert,那些几乎无法手动或电子表格完成的管道流量计算如今变得轻而易举。它能即时提供精确结果,提升计算准确性,避免使用易出错且成本高昂的电子表格模型,让您对管道设计充满信心,并完整记录设计文档。
无可匹敌的超值体验
其性价比远超同类产品,购置成本可快速获得数倍回报,同时节省大量工程设计时间与人力投入。
运用Pipe Flow Expert 记录设计方案,为工程师提供标准化的管道系统分析方法,为销售工程师配备强大的可视化辅助工具助力成交,让客户对您的解决方案充满信心。
流体流动与压力损失计算轻松搞定
专为管道设计师与管道系统工程师打造
其他管道设计软件无法比拟Pipe Flow Expert的快速上手体验:内置30余个示例管道系统、快速入门指南、完整参考手册,以及非常直观的操作界面,助您从第一步就节省时间精力。
设计高效管道系统,助力客户并赢得更多订单
若您的工作涉及管道设计选型、泵送扬程计算或管道网络流量压力损失分析,请放心——我们深知您面临的挑战。
面对客户提问时不知如何作答,或更糟的是给出错误答案,可能导致客户流失,使您和公司承受巨大压力。但现在,计算管道系统流量与压力的方法变得简单——获取Pipe Flow Expert即可。
Pipe Flow Expert彻底革新了我们的设计方式,提升我们工作的专业水准,在提升流体系统能效方面发挥了关键作用。
[ 艾尔·特拉斯,泉源集团咨询有限公司 ]
您将节省时间精力,获得更精准的设计计算,赢得更多商机。
记录管道设计方案,呈现专业管道图纸与计算结果
绘制管道设计图,指定管材规格尺寸,选择流体参数,随后让Pipe Flow Expert分析计算系统中每个节点的压力与流量。
保存设计方案并记录决策依据。打印含流量压力结果的管道示意图,将详细结果导出至Excel表格便于查阅:

Pipe Flow Expert套件设计直观、易用且可靠。只需点击“计算”按钮,即可即时获取结果并完成管道设计。
全球信赖的可靠流量与压降计算软件
Pipe Flow Expert应用于全球100多个国家
我们的Pipe Flow software 系列被全球100多个国家的工程师广泛使用。仅我们的旗舰产品Pipe Flow Expert应用程序就覆盖全球100多个国家。
从独立顾问到中东大型石油公司,众多工程师信赖Pipe Flow Expert,获取所需的流量与压力损失计算结果。
我对小口径管道系统进行了数据匹配……在两个固定压降值下,流量值完全吻合!再次感谢您的卓越支持。您对问题的详尽解答令我司工程部门(包括总裁)印象深刻。
[ 托尼·格维,莫里斯技术公司 ]
流量与压力计算结果验证
Pipe Flow software 采用强大可靠的计算引擎,依据流体连续性与能量守恒定律“求解”系统。最终流量与压力结果通过二次算法验证:该算法基于给定流量结果,以各相邻节点压力差为基础,重新计算每个节点的压力值。
此验证流程确保无论采用何种网络路径进行计算,各节点压力值均计算得出相同数值,从而验证管道网络的精确解。
Pipe Flow software 软件应用领域
本软件服务于航空航天、化工处理、教育机构、食品饮料、通用工程、采矿业、石油化工、制药业、发电厂、水处理及污水处理等多元化行业。
可处理串联或并联多泵的开环与闭环系统。可处理多供料罐与进料流、多排放点与分流点、多组件与配件(包括自带流量与压力损失数据的定制件),并能支持单系统内最多9个不同流体区域(但不计算两相流;用户需为每个流体区域指定流体密度与粘度数据,或从内置流体数据库中选择流体)。
强大的管道网络分析,洞悉管道系统运行机制
在设计新管道系统或分析现有管网时,理解管道、控制装置、泵及其他组件间的交互作用至关重要。
我们的Pipe Flow Expert流体分析软件能清晰呈现管道系统运行状态,助您设计、故障排查及优化流体管道系统。即使面对最复杂的管道系统,Pipe Flow Expert也能提供富有洞见的可视化结果与解决方案。
使用Pipe Flow Expert短短数日,便感受到这款卓越软件的魅力!操作极其简便!我们期待完成设计并推进项目进展。
[保罗·埃尔维基斯,无国界工程师组织]
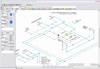
管道示意图上的可视化结果与交互式解决方案数据
管道系统图纸上显示详细的流量与压力结果
管道设计完成后,解决方案数值将显示在管道示意图上,用户可针对流量、压力、摩擦损失等特定计算结果单独选择显示单位。无论身处美国、欧洲、非洲或澳大利亚,用户均可为任意项目选择本地常用单位。

用户可在实际管道系统图纸上直观查看计算结果:管道模型的色彩编码与图形化呈现,使其能即时进行管道设计分析,清晰掌握流量、压力损失及泵的运行点。
管道与节点可根据特定计算结果(如管内流量体积、压降、摩擦损失或其他数据)显示渐变色标,便于快速定位问题区域。
悬停显示单项管道及组件结果数据
在结果图纸上悬停鼠标即可显示特定项目的详细信息,弹出面板将列出所有关联数据与计算结果。
一键导入Excel的详细电子表格式结果
电子表格形式的结果
当用户需要查看表格化计算结果时,PipeFlow Expert可在结果网格中以电子表格格式呈现数据。结果网格与管道系统图纸具备交互性,点击其中任一元素,对应元素将在另一界面高亮显示。此功能便于用户分析管道设计中的单项组件及问题区域。软件提供便捷的“选中并缩放”功能:选取结果网格中的行后,系统将即时执行“缩放至”操作,使选定项目居中显示于管道系统图纸。
将结果导出至Excel
结果网格中的所有数据均可通过单击鼠标即时导出至Microsoft Excel。这使客户能够自定义结果数据和定制报告格式,同时还能利用Excel数学函数对数值范围进行运算,例如计算管道组的总摩擦损失或能量损失。
定制管道系统报告PDF文档
PipeFlow Expert可生成专业定制的PDF报告,完整记录您的管道系统设计方案。用户只需轻点鼠标,即可选择在报告封面添加公司标识、筛选需生成的管道系统数据类型,并选定需在表格中展示的单根管道结果数据。

您可将这些精美的PDF报告用于内部管道系统设计文档、系统设计演示,或作为报价单的一部分发送给客户。
无论您如何使用,您会发现能够即时生成管道系统设计的专业PDF文档,将为您的业务带来诸多优势。
经验证的管道系统计算结果
即便您是数学天才,仅凭手工或电子表格计算也几乎无法精确求解小型管网,原因在于其复杂性及需进行大量数学迭代才能收敛至可验证解的特性。
PipeFlow Expert通过先进建模与计算引擎,可轻松完成流体流动计算,精确求解管道系统中流体与压力的稳态平衡条件。
本软件附带《管道流体专家结果验证报告》,通过对比50余个已发表案例与PipeFlow Expert对相同系统建模所得结果,整体验证结果高度吻合。该软件甚至能指出部分已发表数据中的问题与错误——这些问题后来被证实存在谬误或被认定为印刷错误。
立即下载PipeFlow Expert试用版
我们实行“先试后买”政策,您可下载PipeFlow Expert软件进行试用。软件内置30余个示例系统,加载后即可运行计算,直观了解软件的计算类型与输出结果。配合快速入门指南及直观用户界面,您将迅速掌握操作要领。
还在等什么?立即下载PipeFlow Expert,见证它如何为您和公司节省大量时间与精力。这可能是您今年最明智的投资,立即试用,领先竞争对手一步。
京ICP备09015132号-996 | 网络文化经营许可证京网文[2017]4225-497号 | 违法和不良信息举报电话:4006561155
© Copyright 2000-2025 北京哲想软件有限公司版权所有 | 地址:北京市海淀区西三环北路50号豪柏大厦C2座11层1105室